IV Pod Replacement parts

Internal Components
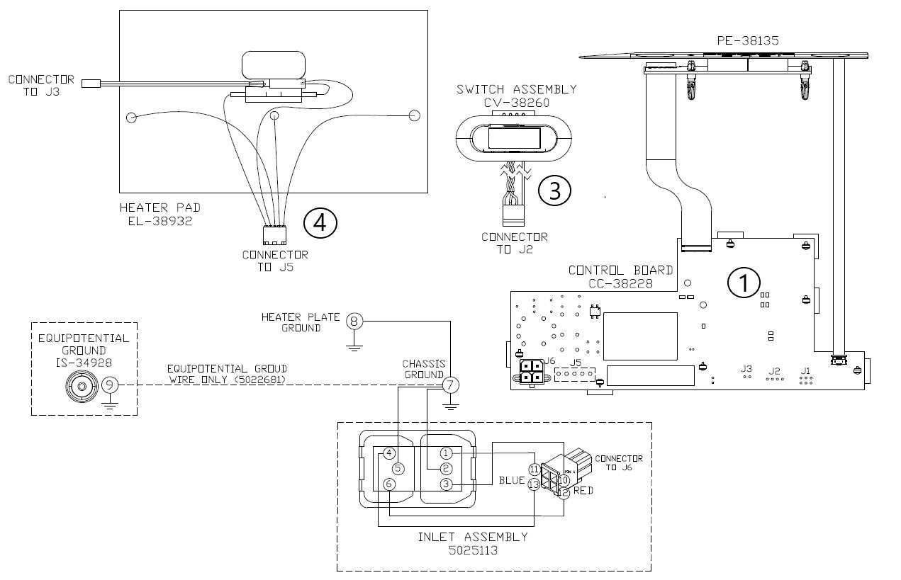
Using the identifying number, you can find the part number in the table below. Click on the drop downs below to view the links to the parts where you can order online.

Mounting Components
Parts List
Service Kits
Mounting Hardware
1-1024480 Panel, Wall Mount, 1-POD
2-1024862 Panel, Wall Mount, 2-POD
3- 1024491 Panel, Wall Mount, 3-POD
4-1024492 Bracket, Mounting Panel Top
5-SC-39434 Thumb Screw, M5 Stainless
6- CD-39244 Cord, 18/3 SJT, 10A-250V
7-Power Cord. (Call us with your serial Number)
